9 Balfour St, Lexington MA 02421


4
bedrooms
3
bathrooms
2,492
sqft
0.23
acre lot
sold price
$1,382,000
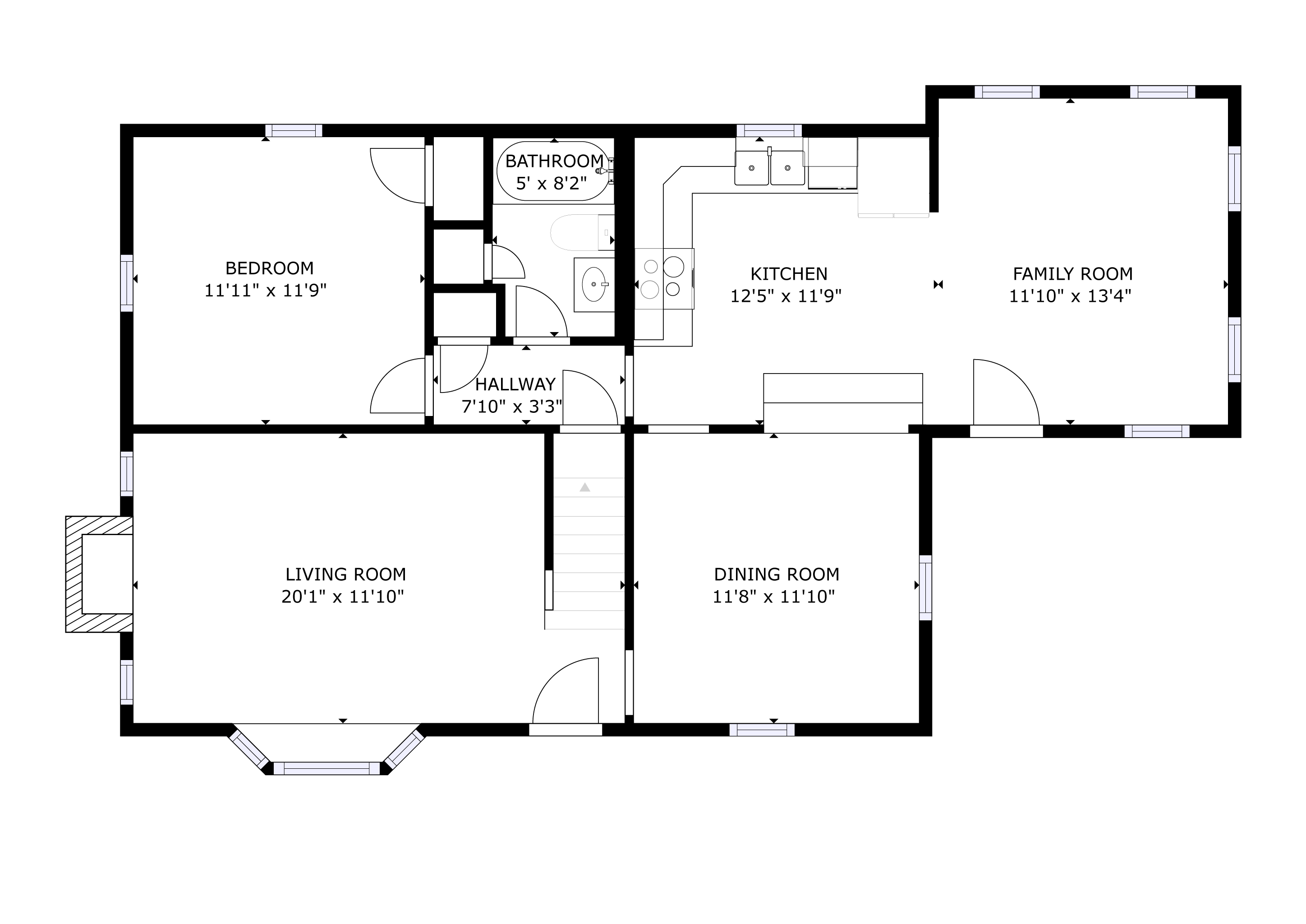
Perfectly set on a large corner lot in a desirable neighborhood, this charming Colonial offers an ideal location close to Lexingtons vibrant town center, the bike path, public transportation, golf course, and the historic Minuteman National Park. The formal living room sets a warm and welcoming tone with hardwood floors, a centrally located fireplace, and a large bay window that fills the space with natural light. The adjacent dining room is equally inviting, with hardwood floors and chair rail. The open-concept kitchen inspires everyday cooking and effortless entertaining alike, featuring SS appliances, stylish white cabinetry, and opens seamlessly to the family room. A main level bedroom offers versatility as an office, guest suite, or whatever suits your needs. Upstairs, the spacious primary suite is a true sanctuary with a walk-in closet, skylight, a beautifully updated bathroom, an attached office and laundry room. More space awaits in the lower-level playroom with a wet bar.