10 Eliot Rd, Lexington MA 02421


7
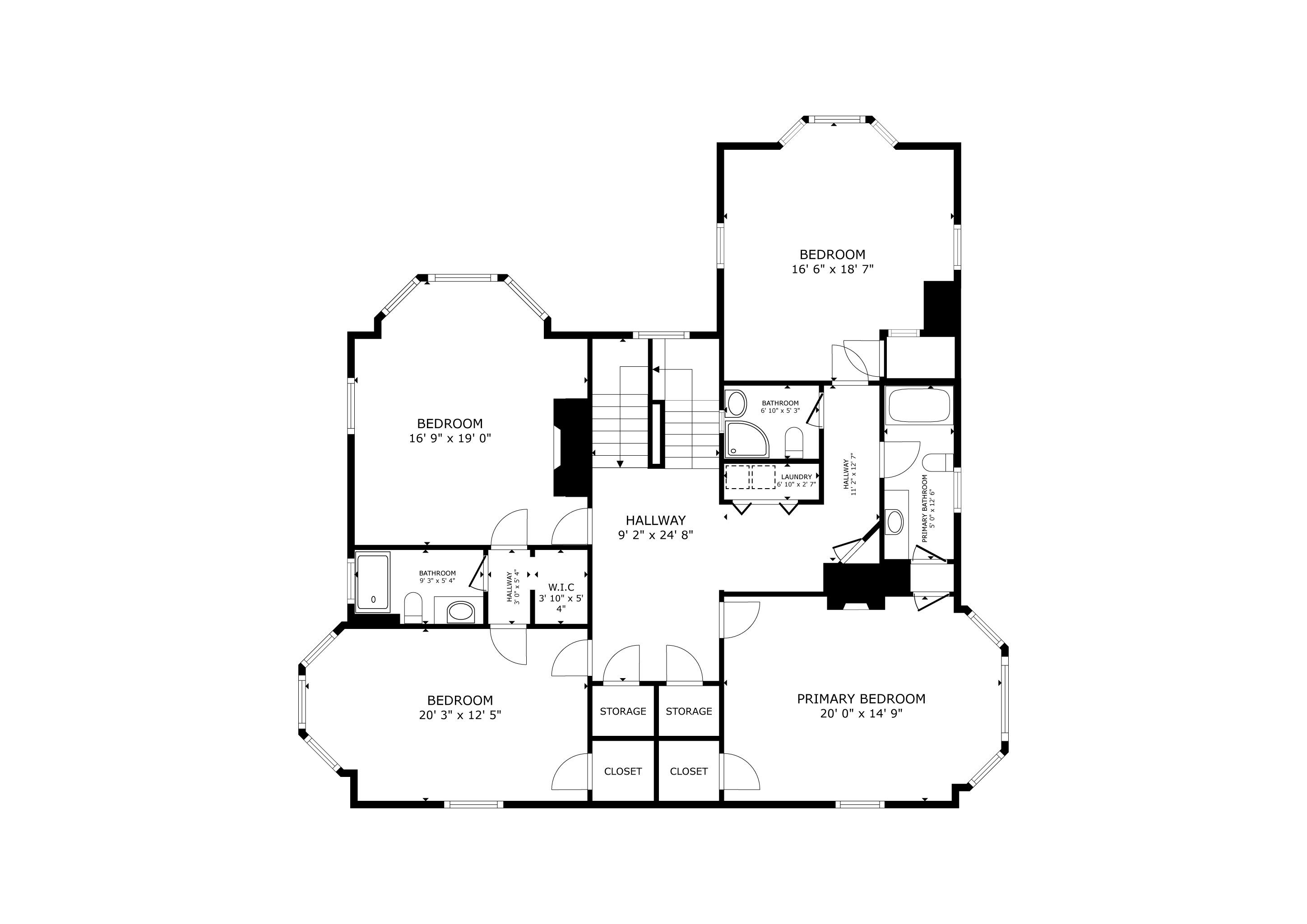
bedrooms
4.5
bathrooms
4,826
sqft
0.61
acre lot
sold price
$2,660,000
Welcome home to a Colonial Revival masterpiece crafted by renowned MIT architect Lois Lilly Howe with a prime location in desirable Munroe Hill, which merges elements from the Georgian and Federal periods with upscale touches of contemporary style and offers a floor plan designed for comfortable living and entertaining. The grand foyer welcomes you with a preview of the homes sophisticated details, including high ceilings, quartersawn oak floors, refined millwork, and four charming fireplaces. The beautifully renovated chefs kitchen features high-end SS appliances, a large breakfast bar island, quartz countertops, butlers pantry, and dining area. Outdoor living is easy with the front and rear porches, a patio and huge private yard. Relax in the private primary suite with a full bathroom, fireplace, and walk in closet.The finished third level offers a guest suite, additional bedrooms, and a private office. Walk to town center, bike path, bus stops, and community tennis courts.