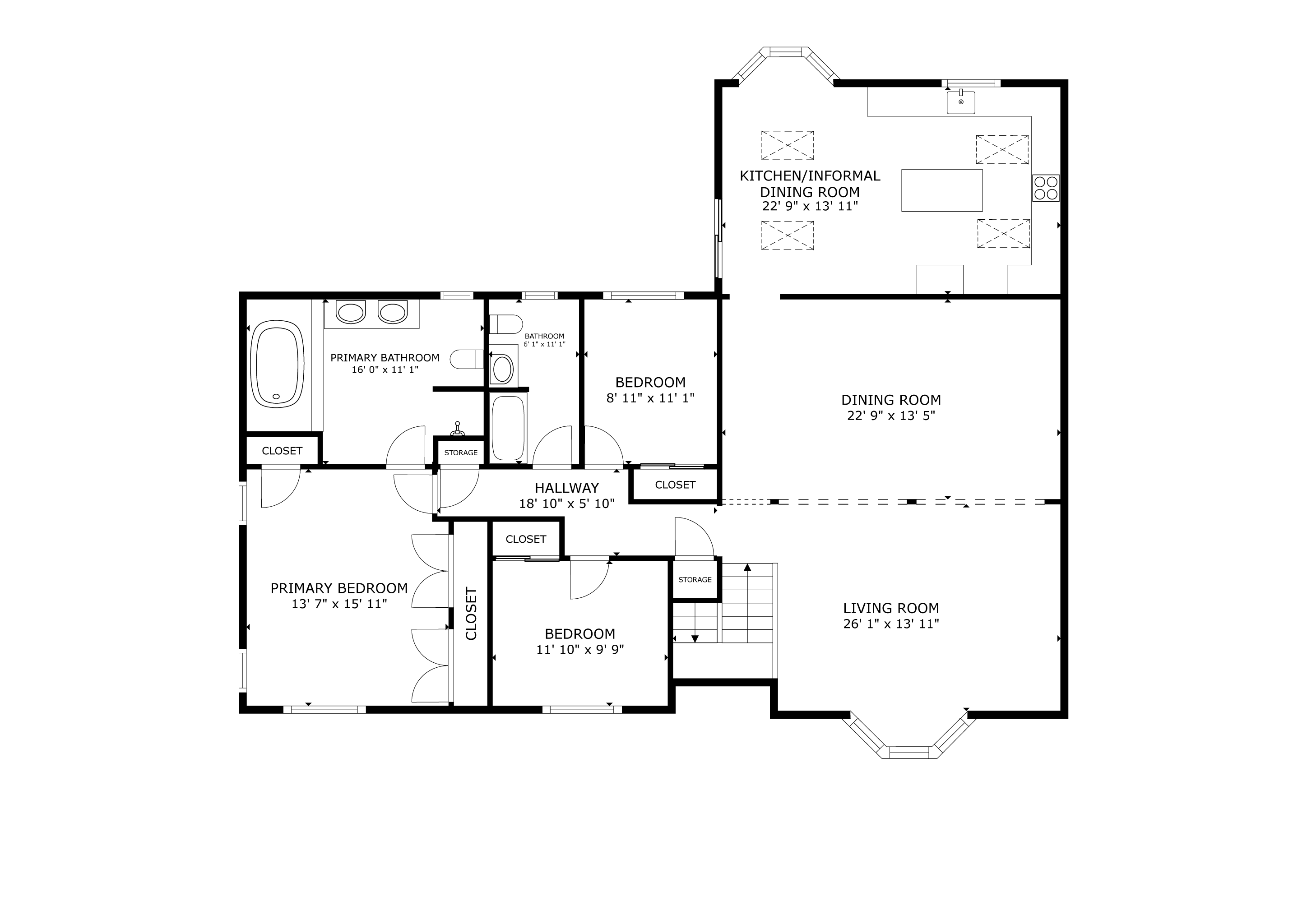
29 Woodpark Circle, Lexington MA 02421


5
bedrooms
3
bathrooms
3,047
sqft
1.03
acre lot
sold price
$1,640,000